Rif: 320 Sesto
SESTO SAN GIOVANNI
MILANO
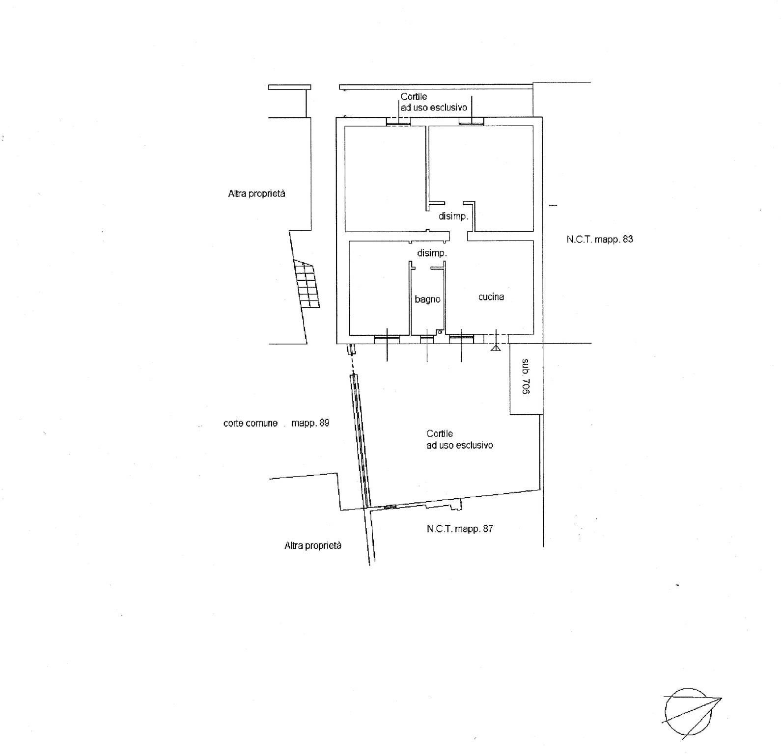
Proponiamo in vendita, a pochi minuti dalla linea M1 Sesto Marelli, appartamento composto da soggiorno con cucina a vista, tre camere e bagno. Ad uso esclusivo dell'appartamento vi è un ampio cortile all'interno del quale , facenti parte sempre della proprietà, vi sono 2 magazzini. Le camere sono ampie e la disposizione degli spazi è razionale. La soluzione qui proposta è ideale per chi desidera avere ampi spazi esterni ed interni.
I contenuti qui pubblicati hanno carattere indicativo e non costituiscono elemento contrattuale.
I contenuti qui pubblicati hanno carattere indicativo e non costituiscono elemento contrattuale.
Consistenze
| Descrizione | Superficie | Sup. comm. |
|---|---|---|
| Principali | ||
| Immobile - piano terra | 89 Mq | 89 Mqc |
| Totale | 89 Mqc | |
